- 株式会社三国ホーム ホーム
- コスモスタウン鴻巣・榎戸2丁目 第3期 全2区画 2号棟

【コスモスタウン鴻巣・榎戸2丁目2号棟】
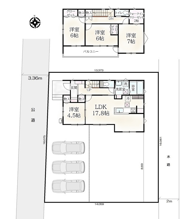
「吹上駅」徒歩16分(約1280m)66坪のゆとりの敷地!
毎週土日祝日オープンハウス開催致します♪
お気軽にお電話(048-549-3000)までお問い合わせください。カーナビ【鴻巣市榎戸2-7-29 付近】

三国ホームの木のぬくもりを感じる住まい♪
梁見せ天井でリビングをグレードアップ♪お部屋の雰囲気づくりとアクセントにも一役買っています。

クリナップ システムキッチン「KT」
食洗器付きで食後の家族の時間を増やします♪
・ホーロートップコンロ(3口)
・グリル/水無片面
・浄水器一体省エネシングル水栓

主寝室にはウォークインクローゼット
コートなど季節のお洋服・ドレスや礼服もラクラク収納できる容量大のウォークイン。
もちろん衣類だけでなく趣味の道具などの収納も。
パノラマ・VR
※空間のイメージ・雰囲気をよりリアルにお伝えできるよう撮影した360度画像です。※PC・スマートフォン・VRゴーグルなどで、物件の中を自由に歩き回るようなバーチャルツアー体験が可能です。※CG合成画像は実際の物件と多少異なる場合がございます。

- 担当スタッフ
- 熊井













































































おすすめポイント①:プレハブやコンテナハウスの事務所または仕事場(10~23㎡)はいかがでしょうか。
*66坪のゆとりの敷地は、もてあますほどの庭スペースがあります。
おすすめポイント②:カースペースは並列で3~4台の駐車が可能です。
*自家用車2台、業務用もしくは趣味の車1~2台
おすすめポイント③:リビングと事務所または仕事場に専用通路
*居住スペースと仕事場の行き来ができるように専用通路をご提案します。
おすすめポイント④:将来的に賃貸アパートの敷地として家賃収入が見込めます。
*JR高崎線「吹上駅」より徒歩16分という立地に恵まれているため、賃貸需要がございます。
【建物・現地は、いつでもご見学できます!】
土日、祝日、平日でもOK
現地に常駐していないため、
ご見学ご希望日時をお知らせ頂ければ、準備させていただきます!
現地でお待ちしています。
【【 不動産コンサルティングマスターからひと言 】】
不動産コンサルティングマスター(登録番号(2)第31243号)とは、
国土交通大臣登録証明事業であり、
不動産を資産活用するための専門知識を生かして、
財産的価値のある不動産の有効活用をオススメします。
ご購入後における不動産の「利用」、「管理」、「投資」における
アドバイスもさせていただきます。
現地のご案内の際には、不動産コンサルティングマスターとして
、該当する物件の特性に合わせてご説明させていただきます。